関電不動産開発・住友不動産・パナソニックホームズがお届けする、分譲マンション「シエリアタワー大阪堀江」の公式サイトです。OsakaMetro「西長堀」駅へ徒歩4分、心斎橋・なんばが生活圏。地上46階建・総戸数500戸。

BItypeBasic

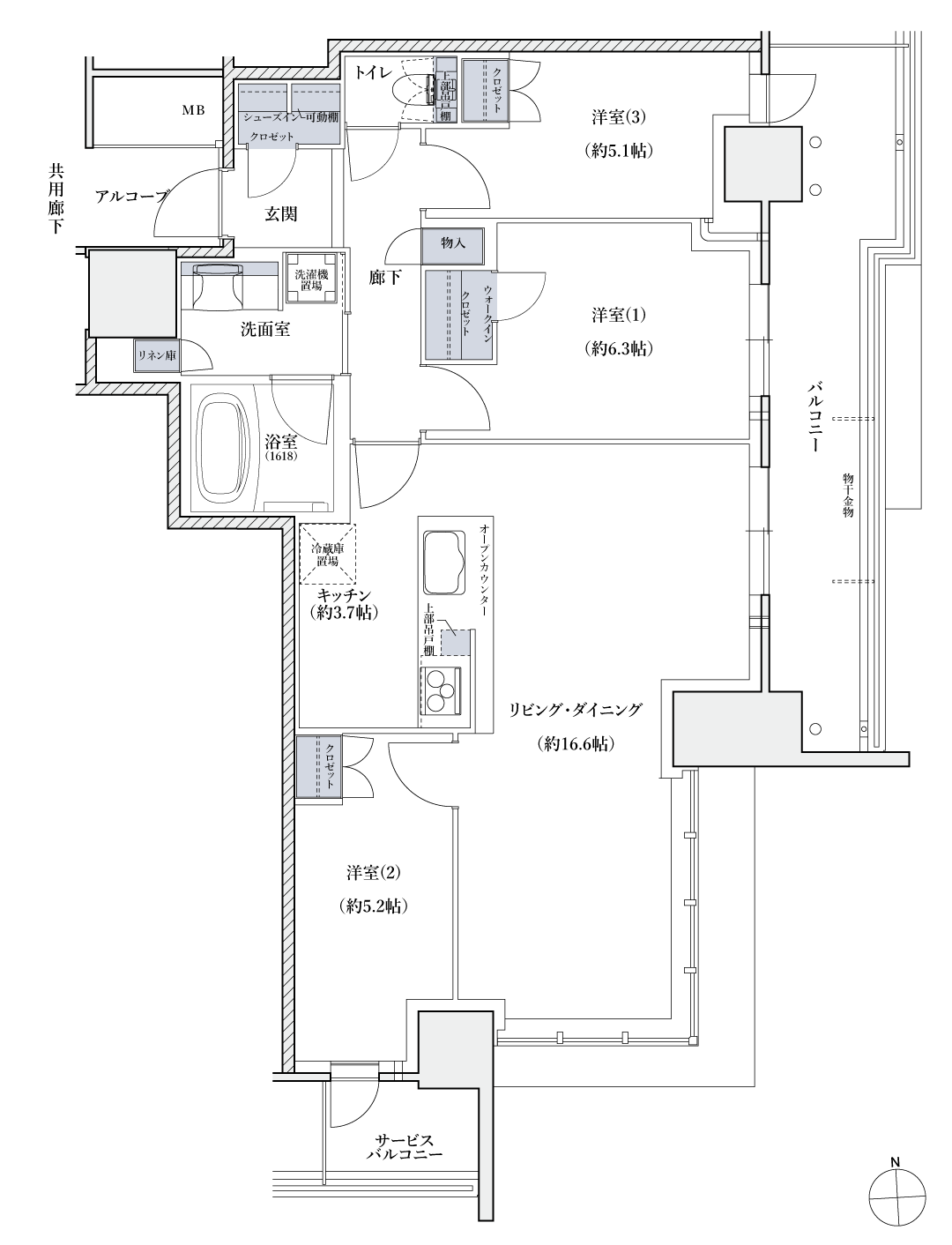
3LDK+WIC+SIC

住居専有面積
81.23
バルコニー面積
13.75㎡
サービスバルコニー面積
2.84㎡
東南角住戸
23階
  • 階数により間取りが異なる場合がございます。詳しくはスタッフにお尋ねください。
凡例
WIC:ウォークインクロゼット
※掲載の間取図・面積等は設計図を元に描いたもので、今後変更になる場合がございます。予めご了承ください。
※1「エリア最高層×最大級」とは、1995年以降に大阪市西区南堀江・北堀江アドレスで供給された分譲マンションのうち、本プロジェクトの地上46階建て・総戸数500戸は最高層・最大規模となることを表現しています(MRC 調べ・2021年7月現在)。
※掲載の現地周辺航空写真は、2021年7月に撮影したものに一部CG加工を施し、外観完成予想図を合成したもので実際とは多少異なります。また、外観完成予想図は、計画中の図面を基に描き起こしたもので、施工上の都合または行政官庁の指導などにより、外観、外構、仕上、形状、植栽などを変更する場合があります。植栽は特定の季節や入居時の状態を想定して描かれたものではありません。植栽計画については変更になる場合があります。また周辺の建物等一部省略しており、実際とは異なります。
※掲載のimage photo以外の環境写真は2021年10月に撮影したものです。