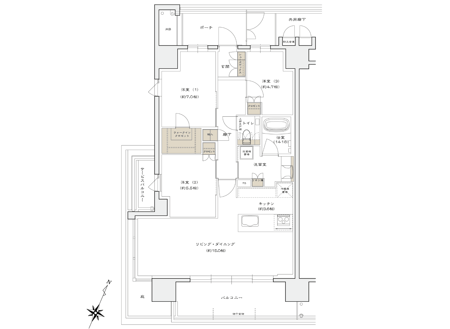
A
TYPE
BASIC
3LDK +WIC
住居専有面積
80 .42㎡
※防災備蓄倉庫面積含む
バルコニー面積/11.70㎡ サービスバルコニー面積/2.97㎡ ポーチ面積/6.13㎡
VALUE POINT
■邸宅感が際立つポーチつき角住戸
■採光と通風に優れた洋室設計
■眺望と採光に優れたアウトフレームリビング

WIC:ウォークインクロゼット SIC:シューズインクロゼット
※掲載の間取り図は計画段階のもので、今後変更になる場合がございます。
※階数により形状が異なる場合があります。詳しくは係員までお問合せ下さい。
※掲載の間取り図は計画段階のもので、今後変更になる場合がございます。
※階数により形状が異なる場合があります。詳しくは係員までお問合せ下さい。