F
TYPE
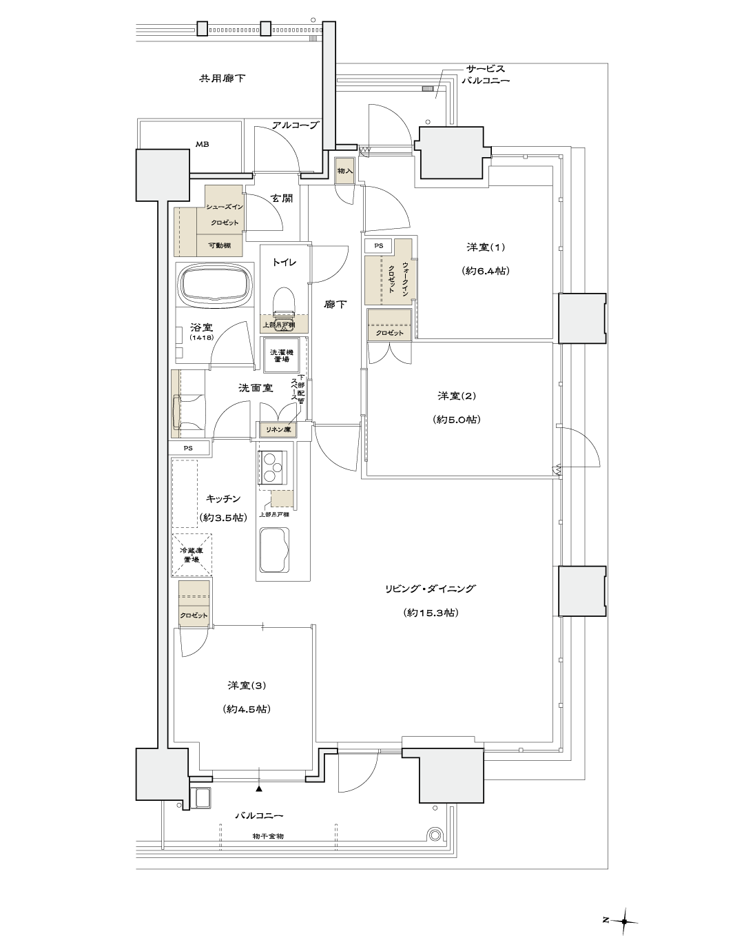
BASIC
3LDK +WIC+SIC
住居専有面積
76 .69㎡
(約23.19坪)
バルコニー面積/7.85㎡(約2.37坪) サービスバルコニー面積/2.68㎡(約0.81坪) アルコーブ面積/1.52㎡(0.45坪)
VALUE POINT
■3面採光と南側の壁一面に広がる窓が生み出す、明るさが魅力の3LDK角住戸

※掲載の図面は計画段階のものであり、今後変更になる場合がございます。
※掲載の情報は2025年6月時点のものであり、 今後変更になる場合がございます。
※掲載の情報は2025年6月時点のものであり、 今後変更になる場合がございます。