A
TYPE
BASIC
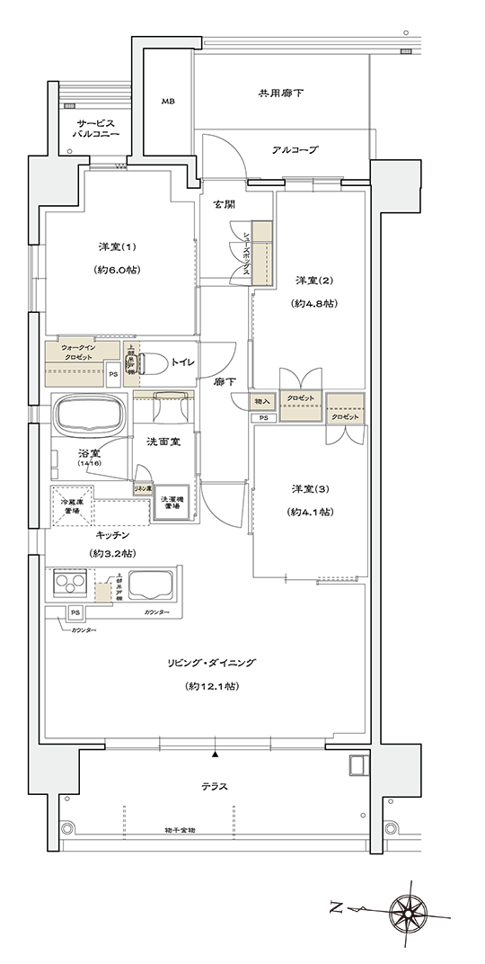
3LDK +WIC
住居専有面積
65 .53㎡
(約19.82坪)
テラス面積10.62㎡(約3.21坪)(1階) バルコニー面積10.62㎡(約3.21坪)(2階) サービスバルコニー面積1.78㎡(約0.53坪) アルコーブ面積3.18㎡(約0.96坪)

※掲載の図面は計画段階のものであり、今後変更になる場合がございます。
※掲載の情報は2025年6月時点のものであり、 今後変更になる場合がございます。
※掲載の情報は2025年6月時点のものであり、 今後変更になる場合がございます。